Appartamento in Vendita a Torino
Via Cernaia, 40 - Centro
Classe energetica
EP glnr: 95.75 kwh/m²
Vendesi in stabile signorile Appartamento con terrazzo - Torino, Via Cernaia Palazzo d'Epoca "Nigri Vercellone" (1872)
Immergiti nel fascino senza tempo di uno dei palazzi storici più prestigiosi di Torino, dove la grande tradizione architettonica si fonde armoniosamente con il comfort contemporaneo.
A pochi passi da Porta Susa e dalla metropolitana, proponiamo in Vendita un magnifico Appartamento di lusso con terrazzo, situato al piano nobile di una residenza dotata di ascensore e servizio di portineria.
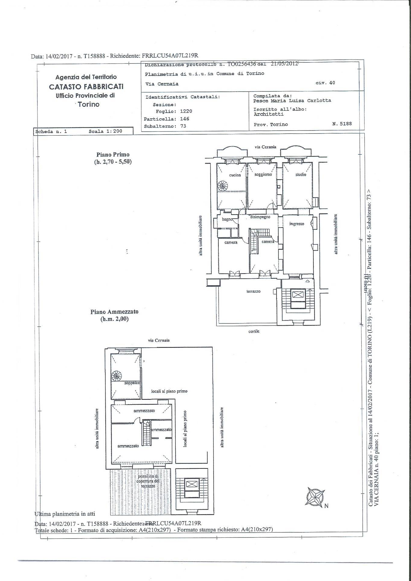
Attraverso lo scenografico scalone d'onore dell'atrio principale, affacciato su un magnifico giardino citato nei volumi dedicati ai cortili storici torinesi, si accede a un Appartamento di circa 245 mq, che si apre su sontuosi saloni di rappresentanza, impreziositi da affreschi originali e da maestosi soffitti alti oltre h. 6 metri, capaci di conferire luminosità e solennità agli ambienti.
Un autentico gioiello storico, in cui ogni dettaglio racconta un'epoca: i parquet d'epoca perfettamente conservati e i soffitti affrescati rendono la dimora un luogo unico e irripetibile.
La proprietà si compone di un ampio ingresso di rappresentanza, due saloni, una scenografica cucina con soppalco, due raffinate camere da letto e un bagno. Una scala interna conduce al piano ammezzato, dove trovano spazio una camera con bagno e spogliatoio. Completano la residenza un prezioso terrazzo interno intimo e riservato e suggestivi balconi affacciati su Corso Vinzaglio, che donano ulteriore prestigio e luminosità.
Una residenza esclusiva, perfetta non solo come abitazione di pregio, ma anche come ufficio di rappresentanza.
Le informazioni sopra descritte non costituiscono elemento contrattuale.
Vercelli Studio Immobiliare
Corso Dante 63
Torino (TO)
Telefono 011360000
Fax 0113242000
Cellulare 3293729625
Email richieste@studiovercelli.it
