Villa Unifamiliare in Vendita a Avigliana
VIA AL TUBO, 7
Classe energetica
EP glnr: 136.96 kwh/m²
Villa indipendente di Prestigio recente costruzione - panoramica
Nel cuore di una delle zone residenziali più eleganti di Avigliana, proponiamo in Vendita una prestigiosa Villa Unifamiliare indipendente, edificata nel 2009 dall'attuale proprietà con materiali e accorgimenti costruttivi di alto livello e con la cura e l'attenzione di costruisce per sé e per i propri figli.
Una proprietà esclusiva, ideale per chi desidera vivere nel verde, in un'oasi di pace ma in un contesto non isolato e senza rinunciare alla comodità dei servizi e alla vicinanza ai principali collegamenti stradali e ferroviari con Torino e la Val di Susa.
La villa, circondata da giardino privato, si sviluppa su due piani fuori terra oltre a un piano interrato, con ambienti ampi, luminosi e perfettamente distribuiti. Disponde di ampia zona giorno, cucina, 4 camere da letto, 2 bagni, lavanderia ,tavernetta, box doppio e vari spazi di servizio.
Vista sulle montagne e sulla Sacra di San Michele
Piano Terra Eleganza e convivialità
L'ingresso si apre su una splendida zona living di generose dimensioni, impreziosita da grandi finestre che donano luminosità naturale durante tutto l'arco della giornata.
La cucina a vista, moderna e funzionale, si integra armoniosamente con l'ambiente, creando uno spazio perfetto per accogliere famiglia e ospiti.
Dalla zona giorno si accede direttamente al giardino privato, dove troviamo un patio attrezzato con tavolo e poltroncine in midollino: lo spazio, curato e suggestvo, è ideale per cene estive, momenti di relax e convivialità in totale privacy.
Completano il piano terra:
Una prima camera da letto, utilizzabile anche come studio;
Un bagno finestrato con doccia, elegante e rifinito con gusto
Piano Superiore Zona notte calda e accogliente
La zona notte mansardata, con travi a vista e pavimentazione in parquet dai toni caldi, regala un'atmosfera raffinata e accogliente.
Troviamo:
Due ampie camere matrimoniali, entrambe con generose armadiature (una dotata anche di spazio scrivania)
Una camera singola di dimensioni superiori alla media, anch'essa con angolo studio
Un bagno di grande charme, arredato con stile e illuminato da doppio punto luce (finestra e lucernario)
Ogni ambiente è studiato per offrire comfort, privacy e armonia.
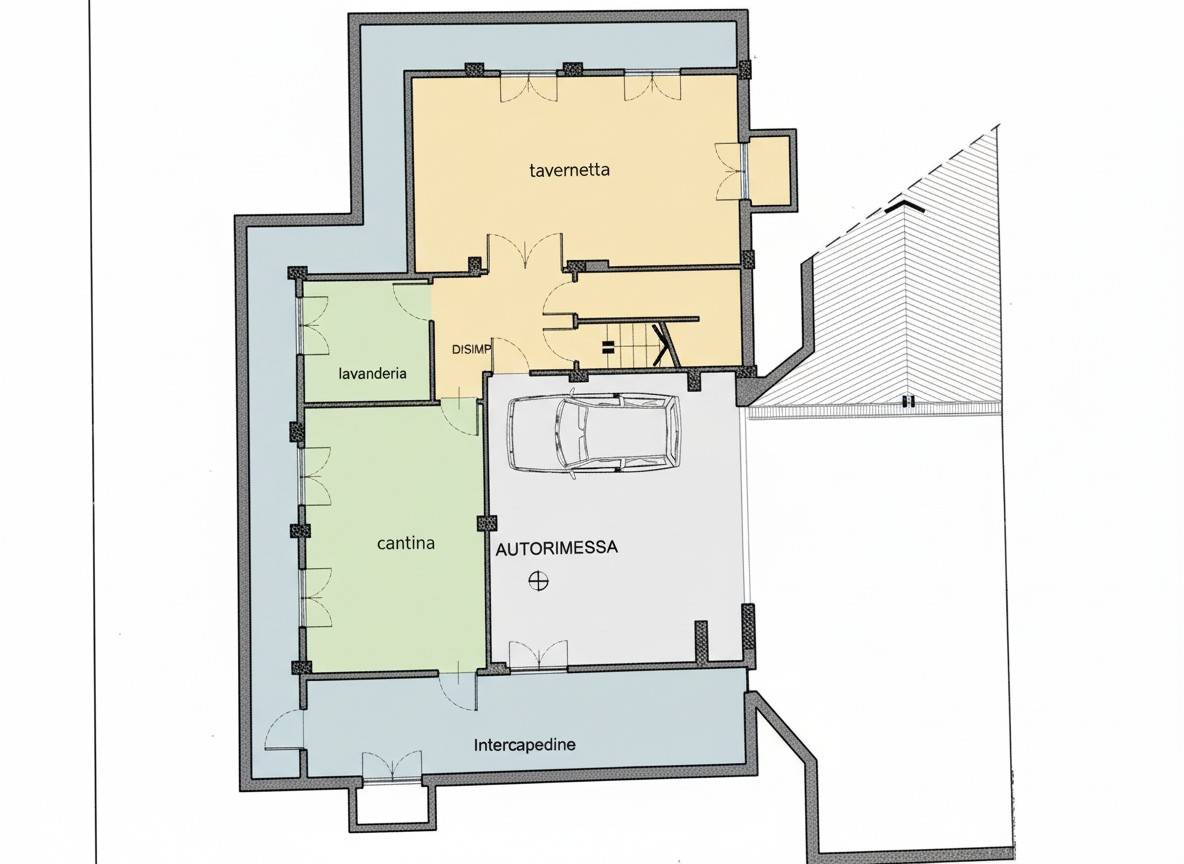
Piano Interrato Spazi versatili e funzionali
Il piano interrato ospita:
Una tavernetta con ampia cucina, perfetta per momenti conviviali
Un grande bagno
Zona lavanderia
Locale tecnico/caldaia
Spazi ideali per ricevere amici o creare un'area hobby e relax.
Giardino e Spazi Esterni
La villa è circondata su quattro lati da un giardino curato e piantumato, con siepi verdi che garantiscono privacy e, in primavera, una splendida fioritura.
Dotazioni esterne:
Impianto di irrigazione all'avanguardia
Illuminazione scenografica serale
Cortile coperto con accesso tramite comoda rampa
Posti auto:
2 nel box con porta automatizzata
2 posti auto coperti adiacenti al box
Comfort, Tecnologia e Sicurezza
La proprietà è dotata di:
Riscaldamento a pavimento regolabile e indipendente per ogni piano
Doppi vetri in legno per isolamento termo-acustico
Pannelli solari per la produzione di acqua calda
Antifurto volumetrico e perimetrale
Citofoni su ogni piano
Ogni dettaglio è stato scelto per garantire massimo comfort abitativo.
La Zona
Via al Tubo si trova in un contesto residenziale esclusivo, circondato da ville curate e di recente costruzione.
La posizione consente di vivere nella tranquillità, pur rimanendo a pochi minuti dai servizi, dalle scuole e dalle bellezze naturali che rendono Avigliana una delle località più ricercate della zona: i suggestivi laghi (dove è possibile praticare la vela e pescare) e la collina morenica con i suoi percorsi di trekking.
La comodità di accesso all'autostarda A32 rende raggiungibile il centro di Torino in 30 minuti.
Per chi ama il golf, la villa si trova a brevissima distanza dal Golf Club Le Fronde di Buttigliera Alta
Perché scegliere questa villa?
Indipendenza totale
Finiture di alto livello
Ambienti luminosi e spaziosi
Efficienza energetica
Zona residenziale elegante
Perfetta per famiglie che desiderano qualità e prestigio
Potete cominciare ad esplorare quest'abitazione guardando il video nell'annuncio.
Il presente annuncio non costituisce offerta al pubblico ai sensi dell'art. 1336 c.c., ma mero invito a proporre.
Vercelli Studio Immobiliare
Corso Dante 63
Torino (TO)
Telefono 011360000
Fax 0113242000
Cellulare 3293729625
Email richieste@studiovercelli.it

